Interior Design
Appartamento in Milano
Arredamento su misura - Contemporaneo
I committenti cercavano una soluzione per l'allestimento degli spazi interni per l’intero appartamento, senza realizzare nuove pareti o cambierna la configurazione.
La proposta per una semplicità cromatica e compositiva per rafforzare l’idea di uno spazio unitario e coerente, è stata accolta e realizzata, con loro piena soddisfazione.
Gli arredi su disegno, realizzati su misura, studiati per ogni ambiente, hanno portato a realizzare un organismo unico. E' stato necessario intervenire sugli impianti in cucina ed in bagno.
Un luogo di vita che invita alla calma, qualità dei materiali e della luce, bellezza e semplicità.
Località: Milano
Committente:Privato
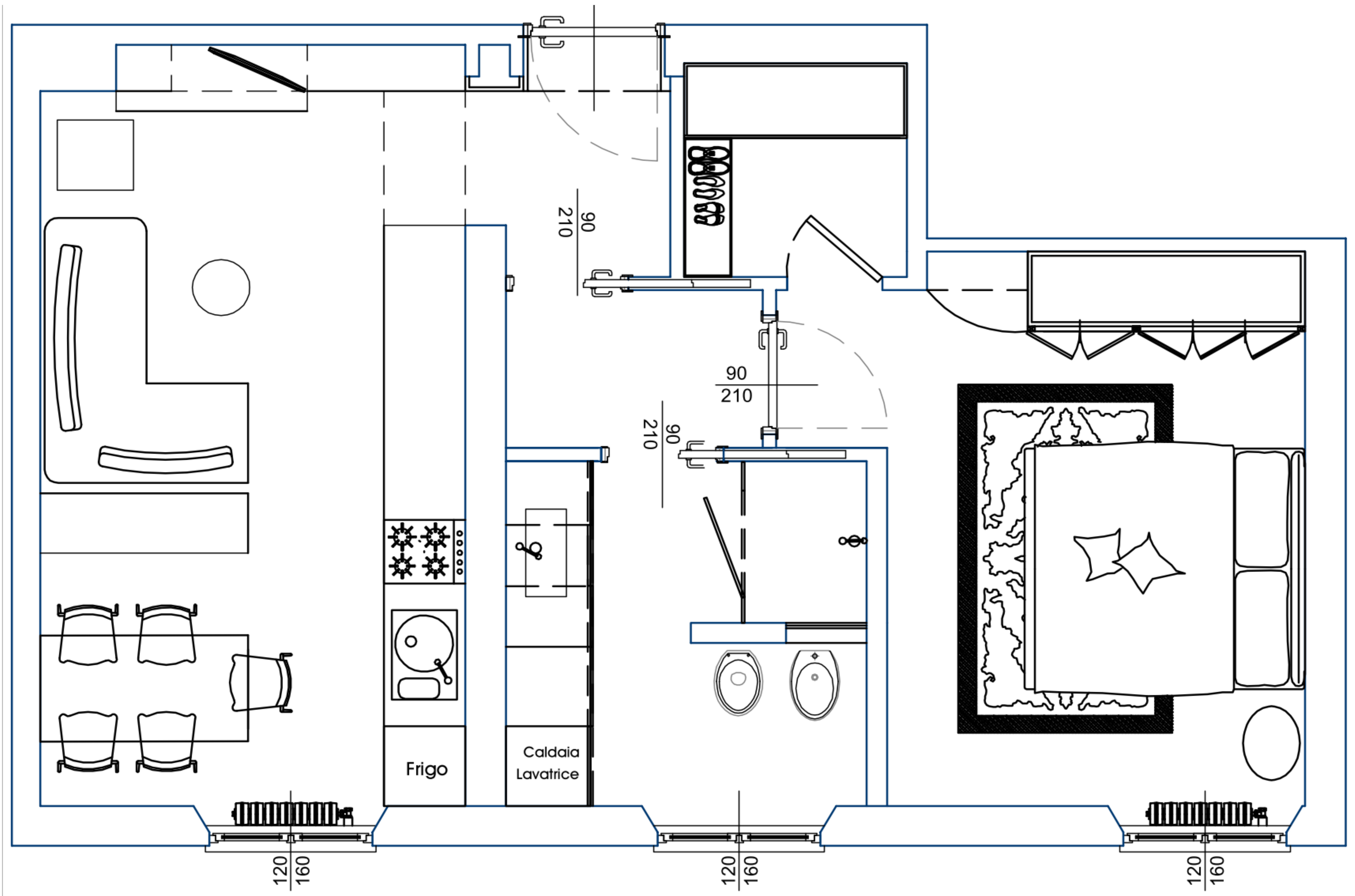
Superficie:80 mq
FASI PROGETTUALI
- Sopralluogo, Analisi degli spazi e valutazioni preliminari
- Studio di fattibilità_Budget preliminare e tempistiche di progetto
- Progettazione Architettonica_Design degli interni_Visualizzazioni 3D
- Progettazione impianti
- Controllo costi
- Direzione lavori

PLANIMETRIA DI PROGETTO

Area Soggiorno
STATO DI FATTO

STATO DI PROGETTO

ARREDO SU MISURA

STATO REALIZZATO

Area Pranzo
STATO DI FATTO

STATO DI PROGETTO

STATO REALIZZATO

Servizi igienici
STATO DI FATTO



IPOTESI PROGETTUALI
Finiture





Appartamento Milano
p1.jpg
http://sito9.rsjob.it/images/sampledata/residenziale/via-procida/p1.jpg
p2.jpg
http://sito9.rsjob.it/images/sampledata/residenziale/via-procida/p2.jpg
p4.jpg
http://sito9.rsjob.it/images/sampledata/residenziale/via-procida/p4.jpg
p3.jpg
http://sito9.rsjob.it/images/sampledata/residenziale/via-procida/p3.jpg
p5.jpg
http://sito9.rsjob.it/images/sampledata/residenziale/via-procida/p5.jpg
p8.jpg
http://sito9.rsjob.it/images/sampledata/residenziale/via-procida/p8.jpg
p6.jpg
http://sito9.rsjob.it/images/sampledata/residenziale/via-procida/p6.jpg
p7.jpg
http://sito9.rsjob.it/images/sampledata/residenziale/via-procida/p7.jpg
p9.jpg
http://sito9.rsjob.it/images/sampledata/residenziale/via-procida/p9.jpg
Italian (IT)
English (UK)